L A B O R A T O R I O . D E . A R Q U I T E C T U R A . E . A R T E S - C E N T R O . D E . E S T U D O S - LabART
                                                                               L A B. . F O R . A R C H I T E C T U R E . A N D . A R T . P R O J E C T S. - R E S E A R C H . C E N T R E
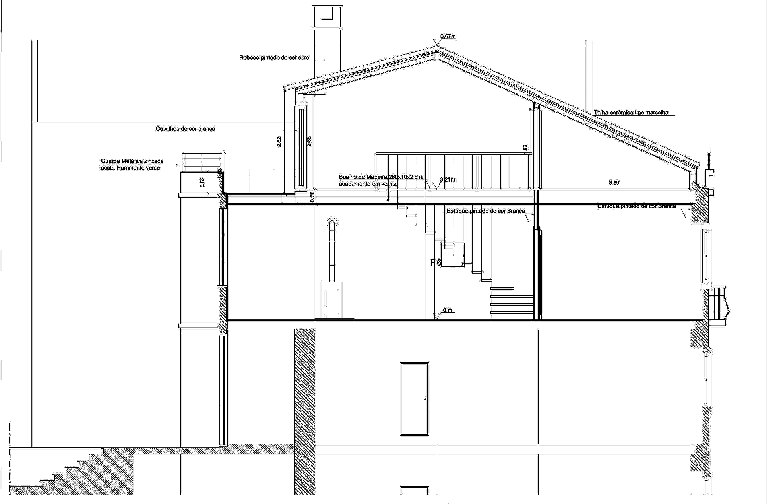
Rehabilitation and expansion of apartment and building in Rua do Século Lisbon
Contacts
geral@labartresearch.com     
Rua das Janelas Verdes nº 32 Porta 19 1200-691 Lisboa (LabART - Artes)
Av. D. Vasco da Gama nº 52, 3Dtº 1400-128 Lisboa (LabART - Arquitectura)
phone: +351 213 901 567 / +351 213 021 312 Mobile: +351 919 321 164
Copyright ©2011  LABART - João Sequeira
updated in 2018